Read more
Description
VERTICAL CENTER IS OPGELEVERD
Geweldig wonen in een duurzame Stadswoning geheel in het groen in een opkomende buurt!
Dit prachtige nieuwbouw appartement verdeeld over twee woonlagen is onderdeel van het duurzame nieuwbouw project VERTICAL en beschikt over een woonetage met open keuken, 2 slaapkamers, badkamer, separate wc, inpandige berging en een terras en ligt op steenworp afstand van Station Sloterdijk.
LOCATIE
Het gebied rond Station Sloterdijk in Amsterdam-West transformeert in een rap tempo van een locatie met een monocultuur naar een gemengd woon- en werkgebied. Het is een echte hub-locatie. Nice to stay in, easy to go out. Zo is trein-, bus- en metrostation Amsterdam-Sloterdijk op loopafstand, sta je binnen een kwartier op Schiphol Airport of het centrum van Amsterdam, ben je met tien minuten fietsen in Westerpark en op een half uur rijden ligt de zee voor een dagje strand.
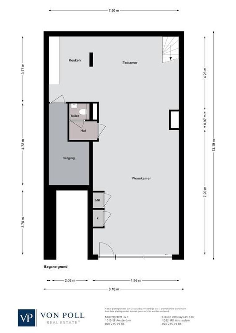
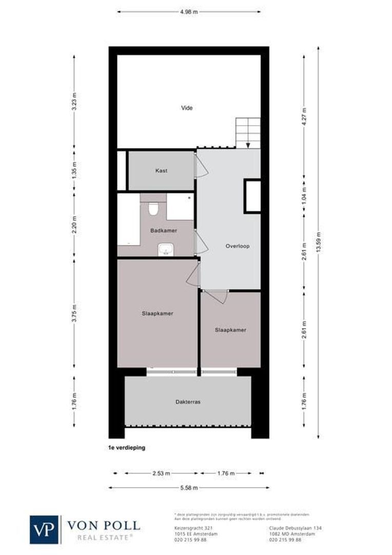
STADSWONING/LAYOUT
Het appartement ligt in de middelste en tevens laagste toren, Vertical Center, verdeeld over de begane grond en de entresol verdieping.
Begane grond: Direct toegang tot de ruime woonkamer. De woonkamer is een speelse ruimte met verschil in hoogte, open keuken en een ruim aanpandig terras. Aan de linker zijde de hal met aparte wc met fontijntje, een interne berging met wasmachine aansluiting en een trap naar de slaapverdieping.
Entresol verdieping: Ruime overloop met toegang tot alle ruimtes. De twee slaapkamers zijn aan voorzijde gelegen. Aan achterzijde de berging en badkamer voorzien van ligbad, douche, wastafel en wc.
VERTICAL
De tuinwoning maakt onderdeel uit van het project Vertical dat bestaat uit 3 deelgebieden: “East” met een hoge toren met 112 appartementen, “Center” met 14 stads- en tuinwoningen in laagbouw en een middelhoge toren “West” met 42 huurwoningen. Het project is door 5 Nederlandse architecten ontworpen en voldoet helemaal aan de hedendaagse wensen op het gebied van duurzaamheid: Vertical wordt één van de duurzaamste gebouwen van Nederland. Daarnaast is er volop gedacht aan het hebben van buiten- en werkruimte. Het ontwerp is organisch vanwege het vele groen door de verticale tuinen. Vanwege de transformatie van de buurt van business district naar een diverse wijk als woon- werkgebied is er ook gedacht aan gezelligheid door het “shared living”- concept. Vrienden of buurtgenoten ontmoeten is mogelijk op een etage in de woontoren. Daarnaast beschikt het complex over een bar/restaurant, een gym en gemeenschappelijke werkruimte.
BIJZONDERHEDEN
- Appartement gelegen in één van de duurzaamste gebouwen van Nederland
- Oplevering is exclusief keuken, wand- en vloerafwerking maar inclusief sanitair
- Erfpacht is eeuwigdurend afgekocht
- Ruime woonetage met open keuken
- 2 slaapkamers
- Terras van 7,5 m2
- Separate wc
- Inpandige berging
- Gemeenschappelijke fietsenstalling in de ondergelegen kelder
- ‘Shared-living’ concept, gemeenschappelijke ruimte in de woontoren, bar/restaurant, gym en gemeenschappelijke werkruimte
- Duurzaam: het gebouw gebruikt de zon, de wind en slaat warmte en koude op in de grond. Regenwater en warm water worden optimaal (her)gebruikt. Groene gevels en daktuinen zorgen voor minder snelle opwarming van het gebouw
- Project notaris: Brummelhuis Notariaat
Deze informatie is door ons met de nodige zorgvuldigheid samengesteld. Onzerzijds wordt echter geen enkele aansprakelijkheid aanvaard voor enige onvolledigheid, onjuistheid of anderszins, dan wel de gevolgen daarvan. Alle opgegeven maten en oppervlakten zijn indicatief. Koper heeft zijn eigen onderzoek plicht naar alle zaken die voor hem of haar van belang zijn. Met betrekking tot deze woning is de makelaar adviseur van verkoper. Wij adviseren u een deskundige (NVM-)makelaar in te schakelen die u begeleidt bij het aankoopproces. Indien u specifieke wensen heeft omtrent de woning, adviseren wij u deze tijdig kenbaar te maken aan uw aankopend makelaar en hiernaar zelfstandig onderzoek te (laten) doen. Indien u geen deskundige vertegenwoordiger inschakelt, acht u zich volgens de wet deskundige genoeg om alle zaken die van belang zijn te kunnen overzien. Van toepassing zijn de NVM voorwaarden.
------------------
Great living in a sustainable ‘Stadswoning woning’ completely surrounded by greenery in an up-and-coming neighborhood!
This beautiful new-build apartment spread over two floors is part of the sustainable new-build project VERTICAL and has a living floor with open kitchen, 2 bedrooms, bathroom, separate toilet, storage room and terrace and is located on a stone's throw from Sloterdijk Station.
LOCATION
The area around Sloterdijk Station in Amsterdam-West is rapidly transforming from a location with a monoculture to a mixed living and working area. It's a real hub location. Nice to stay in, easy to go out. Train, bus and metro station Amsterdam-Sloterdijk is within walking distance. Within fifteen minutes you are at Schiphol Airport or the center of Amsterdam, with ten minutes by bike you are in Westerpark and the sea is half an hour away for a day at the beach.
STADSWONING/LAYOUT
The apartment is located in the middle and lowest tower, Vertical Center, divided over the ground floor and the mezzanine floor.
Ground floor: Direct access to the spacious living room. The living room is a playful space with a difference in height, open kitchen and a spacious adjoining terrace. On the left side the hall with separate toilet with fountain, an internal storage room with washing machine connection and a staircase to the sleeping floor.
Mezzanine floor: Spacious landing with access to all areas. The two bedrooms are located at the front. At the rear the storage room and bathroom with bath, shower, sink and toilet.
VERTICAL
The apartment is part of the Vertical project, which consists of 3 sub-areas: “East” with a high tower with 112 apartments, “Center” with 14 city and garden apartments in low-rise buildings and a medium-high tower “West” with 42 rental apartments. The project was designed by 5 Dutch architects and fully meets today's wishes in the field of sustainability: Vertical will be one of the most sustainable buildings in the Netherlands. In addition, plenty of thought has been given to having outdoor and work space. The design is organic because of the greenery through the vertical gardens. Due to the transformation of the neighborhood from a business district into a diverse neighborhood as a residential and work area, the “shared living” concept has also meant that there is a sense of cosiness. Meeting friends or neighbors is possible on a floor in the residential tower. In addition, the complex has a bar/restaurant, a gym and communal workspace.
FEATURES
- Apartment located in one of the most sustainable buildings in the Netherlands
- Includes sanitary facilities
- Excludes kitchen, wall and floor finishes
- Perpetual surrendered leasehold is paid for (no more charges for landlease)
- Spacious living floor with open kitchen
- 2 bedrooms
- Terrace of 7,5 m2
- Separate toilet
- Indoor storage
- Communal bicycle storage in the basement below
- ‘Shared-living’ concept, common area in the residential tower, bar/restaurant, gym and common workspace
- Sustainable: the building uses the sun, the wind and stores heat and cold in the ground. Rainwater and warm water are optimally (re)used. Green facades and roof gardens ensure that the building heats up less quickly
- Project notary: Brummelhuis Notariaat
This information has been compiled by us with the necessary care. On our part, however, no liability is accepted for any incompleteness, inaccuracy or otherwise, or the consequences thereof. All specified sizes and surfaces are indicative. Buyer has his own duty to investigate all matters that are important to him or her. The estate agent is an advisor to the seller regarding this property. We advise you to hire an expert (NVM) broker who will guide you through the purchasing process. If you have specific wishes regarding the house, we advise you to make this known to your purchasing broker in good time and to have them investigated independently. If you do not engage an expert representative, you consider yourself to be expert enough by law to be able to oversee all matters of interest. The NVM conditions apply.
Geweldig wonen in een duurzame Stadswoning geheel in het groen in een opkomende buurt!
Dit prachtige nieuwbouw appartement verdeeld over twee woonlagen is onderdeel van het duurzame nieuwbouw project VERTICAL en beschikt over een woonetage met open keuken, 2 slaapkamers, badkamer, separate wc, inpandige berging en een terras en ligt op steenworp afstand van Station Sloterdijk.
LOCATIE
Het gebied rond Station Sloterdijk in Amsterdam-West transformeert in een rap tempo van een locatie met een monocultuur naar een gemengd woon- en werkgebied. Het is een echte hub-locatie. Nice to stay in, easy to go out. Zo is trein-, bus- en metrostation Amsterdam-Sloterdijk op loopafstand, sta je binnen een kwartier op Schiphol Airport of het centrum van Amsterdam, ben je met tien minuten fietsen in Westerpark en op een half uur rijden ligt de zee voor een dagje strand.
STADSWONING/LAYOUT
Het appartement ligt in de middelste en tevens laagste toren, Vertical Center, verdeeld over de begane grond en de entresol verdieping.
Begane grond: Direct toegang tot de ruime woonkamer. De woonkamer is een speelse ruimte met verschil in hoogte, open keuken en een ruim aanpandig terras. Aan de linker zijde de hal met aparte wc met fontijntje, een interne berging met wasmachine aansluiting en een trap naar de slaapverdieping.
Entresol verdieping: Ruime overloop met toegang tot alle ruimtes. De twee slaapkamers zijn aan voorzijde gelegen. Aan achterzijde de berging en badkamer voorzien van ligbad, douche, wastafel en wc.
VERTICAL
De tuinwoning maakt onderdeel uit van het project Vertical dat bestaat uit 3 deelgebieden: “East” met een hoge toren met 112 appartementen, “Center” met 14 stads- en tuinwoningen in laagbouw en een middelhoge toren “West” met 42 huurwoningen. Het project is door 5 Nederlandse architecten ontworpen en voldoet helemaal aan de hedendaagse wensen op het gebied van duurzaamheid: Vertical wordt één van de duurzaamste gebouwen van Nederland. Daarnaast is er volop gedacht aan het hebben van buiten- en werkruimte. Het ontwerp is organisch vanwege het vele groen door de verticale tuinen. Vanwege de transformatie van de buurt van business district naar een diverse wijk als woon- werkgebied is er ook gedacht aan gezelligheid door het “shared living”- concept. Vrienden of buurtgenoten ontmoeten is mogelijk op een etage in de woontoren. Daarnaast beschikt het complex over een bar/restaurant, een gym en gemeenschappelijke werkruimte.
BIJZONDERHEDEN
- Appartement gelegen in één van de duurzaamste gebouwen van Nederland
- Oplevering is exclusief keuken, wand- en vloerafwerking maar inclusief sanitair
- Erfpacht is eeuwigdurend afgekocht
- Ruime woonetage met open keuken
- 2 slaapkamers
- Terras van 7,5 m2
- Separate wc
- Inpandige berging
- Gemeenschappelijke fietsenstalling in de ondergelegen kelder
- ‘Shared-living’ concept, gemeenschappelijke ruimte in de woontoren, bar/restaurant, gym en gemeenschappelijke werkruimte
- Duurzaam: het gebouw gebruikt de zon, de wind en slaat warmte en koude op in de grond. Regenwater en warm water worden optimaal (her)gebruikt. Groene gevels en daktuinen zorgen voor minder snelle opwarming van het gebouw
- Project notaris: Brummelhuis Notariaat
Deze informatie is door ons met de nodige zorgvuldigheid samengesteld. Onzerzijds wordt echter geen enkele aansprakelijkheid aanvaard voor enige onvolledigheid, onjuistheid of anderszins, dan wel de gevolgen daarvan. Alle opgegeven maten en oppervlakten zijn indicatief. Koper heeft zijn eigen onderzoek plicht naar alle zaken die voor hem of haar van belang zijn. Met betrekking tot deze woning is de makelaar adviseur van verkoper. Wij adviseren u een deskundige (NVM-)makelaar in te schakelen die u begeleidt bij het aankoopproces. Indien u specifieke wensen heeft omtrent de woning, adviseren wij u deze tijdig kenbaar te maken aan uw aankopend makelaar en hiernaar zelfstandig onderzoek te (laten) doen. Indien u geen deskundige vertegenwoordiger inschakelt, acht u zich volgens de wet deskundige genoeg om alle zaken die van belang zijn te kunnen overzien. Van toepassing zijn de NVM voorwaarden.
------------------
Great living in a sustainable ‘Stadswoning woning’ completely surrounded by greenery in an up-and-coming neighborhood!
This beautiful new-build apartment spread over two floors is part of the sustainable new-build project VERTICAL and has a living floor with open kitchen, 2 bedrooms, bathroom, separate toilet, storage room and terrace and is located on a stone's throw from Sloterdijk Station.
LOCATION
The area around Sloterdijk Station in Amsterdam-West is rapidly transforming from a location with a monoculture to a mixed living and working area. It's a real hub location. Nice to stay in, easy to go out. Train, bus and metro station Amsterdam-Sloterdijk is within walking distance. Within fifteen minutes you are at Schiphol Airport or the center of Amsterdam, with ten minutes by bike you are in Westerpark and the sea is half an hour away for a day at the beach.
STADSWONING/LAYOUT
The apartment is located in the middle and lowest tower, Vertical Center, divided over the ground floor and the mezzanine floor.
Ground floor: Direct access to the spacious living room. The living room is a playful space with a difference in height, open kitchen and a spacious adjoining terrace. On the left side the hall with separate toilet with fountain, an internal storage room with washing machine connection and a staircase to the sleeping floor.
Mezzanine floor: Spacious landing with access to all areas. The two bedrooms are located at the front. At the rear the storage room and bathroom with bath, shower, sink and toilet.
VERTICAL
The apartment is part of the Vertical project, which consists of 3 sub-areas: “East” with a high tower with 112 apartments, “Center” with 14 city and garden apartments in low-rise buildings and a medium-high tower “West” with 42 rental apartments. The project was designed by 5 Dutch architects and fully meets today's wishes in the field of sustainability: Vertical will be one of the most sustainable buildings in the Netherlands. In addition, plenty of thought has been given to having outdoor and work space. The design is organic because of the greenery through the vertical gardens. Due to the transformation of the neighborhood from a business district into a diverse neighborhood as a residential and work area, the “shared living” concept has also meant that there is a sense of cosiness. Meeting friends or neighbors is possible on a floor in the residential tower. In addition, the complex has a bar/restaurant, a gym and communal workspace.
FEATURES
- Apartment located in one of the most sustainable buildings in the Netherlands
- Includes sanitary facilities
- Excludes kitchen, wall and floor finishes
- Perpetual surrendered leasehold is paid for (no more charges for landlease)
- Spacious living floor with open kitchen
- 2 bedrooms
- Terrace of 7,5 m2
- Separate toilet
- Indoor storage
- Communal bicycle storage in the basement below
- ‘Shared-living’ concept, common area in the residential tower, bar/restaurant, gym and common workspace
- Sustainable: the building uses the sun, the wind and stores heat and cold in the ground. Rainwater and warm water are optimally (re)used. Green facades and roof gardens ensure that the building heats up less quickly
- Project notary: Brummelhuis Notariaat
This information has been compiled by us with the necessary care. On our part, however, no liability is accepted for any incompleteness, inaccuracy or otherwise, or the consequences thereof. All specified sizes and surfaces are indicative. Buyer has his own duty to investigate all matters that are important to him or her. The estate agent is an advisor to the seller regarding this property. We advise you to hire an expert (NVM) broker who will guide you through the purchasing process. If you have specific wishes regarding the house, we advise you to make this known to your purchasing broker in good time and to have them investigated independently. If you do not engage an expert representative, you consider yourself to be expert enough by law to be able to oversee all matters of interest. The NVM conditions apply.
Looking for something similar?
Apply directly

Details
- Status
- Sold
- Build year
- 2023
- Energy label
- A++
- Living surface
- 120m²
- Volume
- 360m³
- Rooms
- 3
- Bedrooms
- 2
- Bathrooms
- 1
- Homeowners association costs
- € 305
- Status
- Sold
- Acceptance
- In consultation
- Address
- Menarahof 22
- Zipcode
- 1043 EV
- City
- Amsterdam
Acceptance
Build
- Apartment type
- Double downstairs house, Apartment
- Bottom floor
- 1
- Build type
- Existing
- Build year
- 2023
- Maintenance inside
- Excellent
- Maintenance outside
- Excellent
Surface and volume
- Living surface
- ca. 120m²
- Livingroom surface
- ca. 44m²
- Volume
- ca. 360m³
Layout
- Rooms
- 3
- Bedrooms
- 2
- Bathrooms
- 1
- Number of floors
- 2
- Facilities
- Cable tv, Solar panel, Balanced ventialtion
Energy
- Energy label
- A++
- Isolation
- Fully isolated
- Hot water
- Central supply, Geothermal
- Heating
- Heated floor, Heat pump, Heat recovery installation, Geothermal
Exterior areas
- Location
- Near quiet road, Sheltered location
- Garden
- Sun terrace
- Sun terrace
- South, 8m², 200×375cm
More about this listing




Your browser does not support WebGL
[
{
"address": "Menarahof
22",
"zipCode": "1043 EV",
"city": "Amsterdam",
"lat": 52.3867667,
"lng": 4.834893,
"heading": 0,
"pitch": 0
}
]
Bekijk kaart
[
{
"featureType": "poi.attraction",
"elementType": "labels",
"stylers": [
{
"visibility": "off"
}
]
},
{
"featureType": "poi.business",
"elementType": "labels",
"stylers": [
{
"visibility": "off"
}
]
},
{
"featureType": "poi.government",
"elementType": "labels",
"stylers": [
{
"visibility": "off"
}
]
},
{
"featureType": "poi.medical",
"elementType": "labels",
"stylers": [
{
"visibility": "off"
}
]
},
{
"featureType": "poi.park",
"elementType": "labels",
"stylers": [
{
"visibility": "off"
}
]
},
{
"featureType": "poi.place_of_worship",
"elementType": "labels",
"stylers": [
{
"visibility": "off"
}
]
},
{
"featureType": "poi.school",
"elementType": "labels",
"stylers": [
{
"visibility": "off"
}
]
},
{
"featureType": "poi.sports_complex",
"elementType": "labels",
"stylers": [
{
"visibility": "off"
}
]
}
]